





Nicol
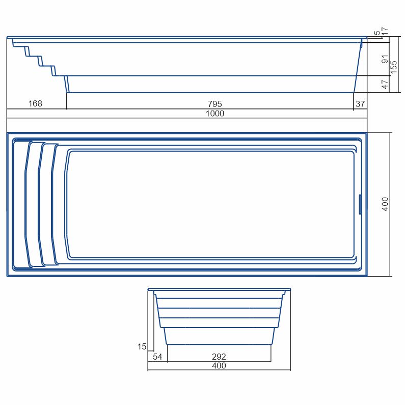
10.00 m x 4.00 m x 1.55 m
The Nicol pool combines functionality and elegance, highlighted by its wide, timeless stairs. Their classic, simple design fits perfectly into any setting, and the full width of the stairs encourages comfortable entry into the water. The rectangular basin harmonizes beautifully with modern architectural styles, and the straight walls not only give the pool a modern look but also make the installation of a pool cover or enclosure easier. This shape pairs excellently with terraces, wooden decks, or tiled finishes.
The Nicol pool is designed to accommodate multiple users at the same time, making it an ideal venue for family gatherings or social events. The spacious design offers plenty of room for water fun and relaxation. The water depth of approximately 135 cm ensures comfortable use for both men and women.
For the safety of children, the pool is equipped with a practical “safety step” running along the lower part of the basin. This feature provides younger users with stable footing and a safe place to rest by the wall.
An additional advantage of the pool is the carefully shaped area for a wide skimmer, ensuring effective water filtration while maintaining an aesthetic appearance. The flat wall opposite the stairs allows for easy installation of a pool cover, while subtle reinforcements in the upper part of the walls provide extra support.
Długość i szerokość
- 10.00 m x 4.00 m
Głębokość
- 1.55 m
Pojemność wody
- 40.9 m3
Kategorie
Illustrative drawing
